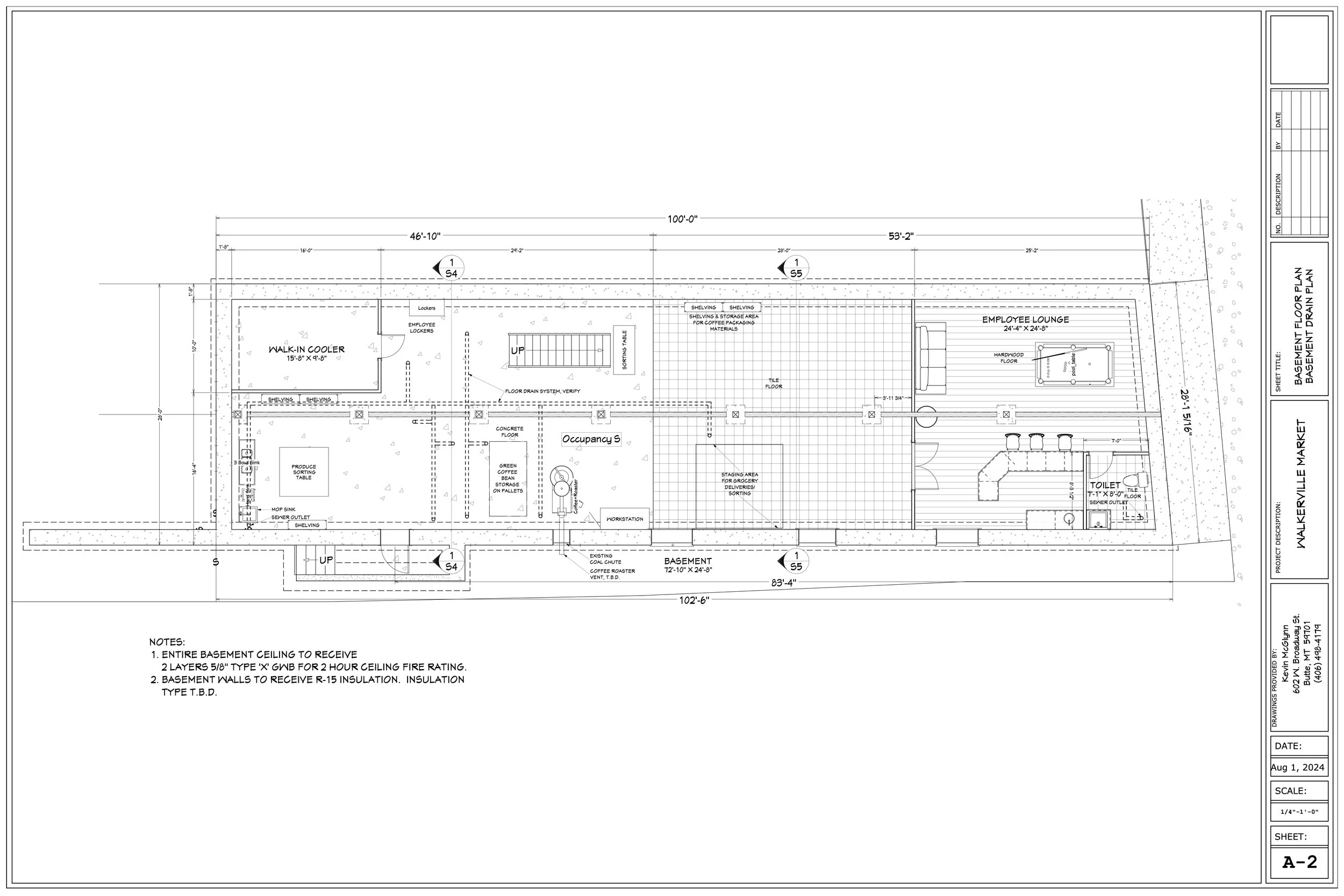
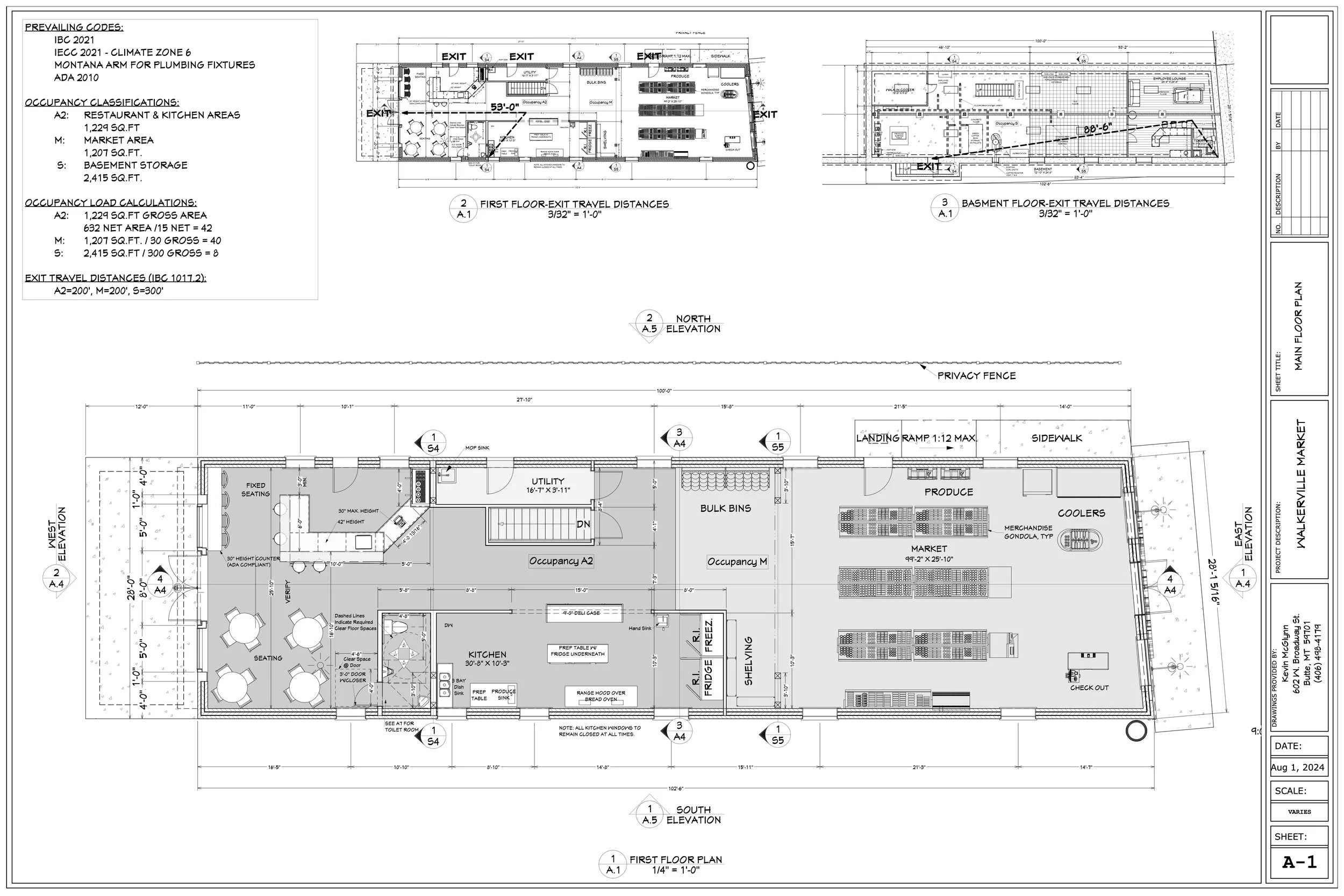
Grocery Store Plans

Our hope is to open the grocery store some time in the first half of 2027, which is in line with our original estimate that it would take ten years to finish the building renovation and get the store up and running. Working primarily on grant funding and volunteer labor, the project has taken quite a long time to get to where we are today.

The plans below show our floor plan, which we arrived at after many hours of deliberation and planning over a period of years. Local draftsman Kevin McGlynn helped us put these together, with help from a grant through the Montana Department of Agriculture’s Business Acceleration Program. In a major administrative win, these plans have been reviewed by the Butte-Silver Bow Health Department and Building Codes and have been approved. The building was also re-zoned to its original use as C2 (Community Commercial) back in 2024. Now all we have to do is finish the interior renovations and we’ll be in a position to get financing to open the store!